
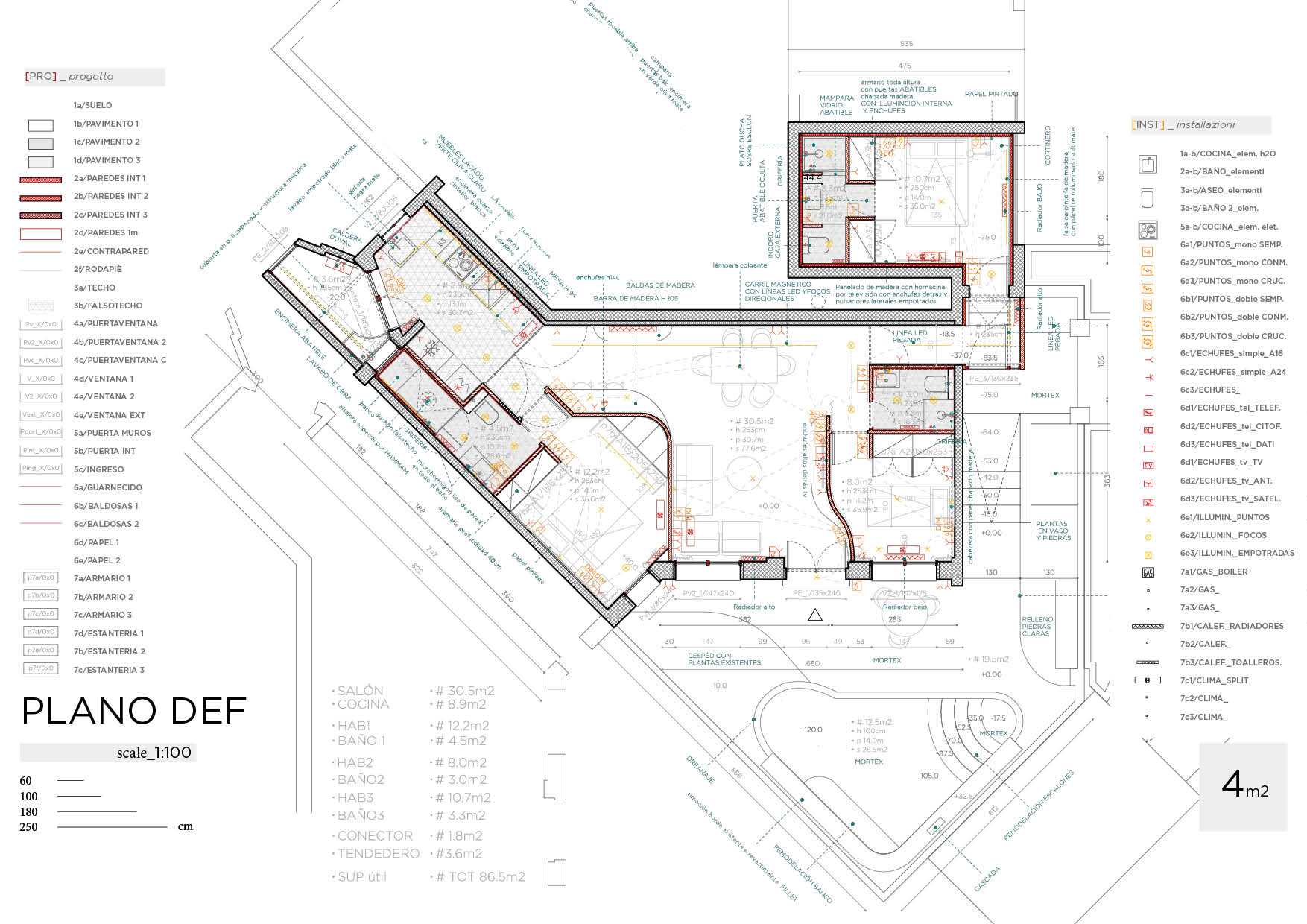
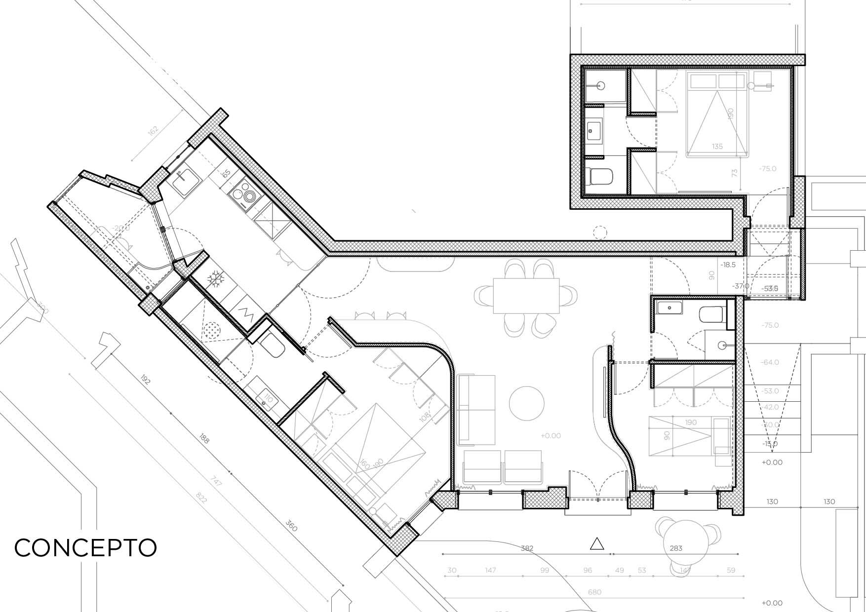
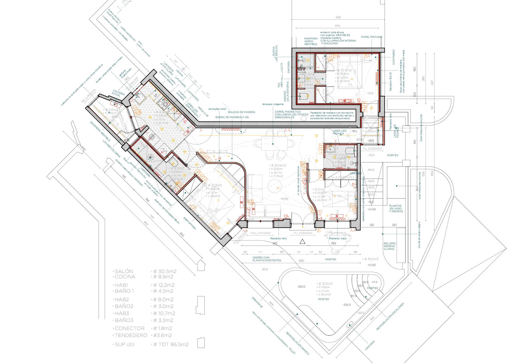
*86m2+60ext @0/2 || 1 salón + 3 dormitorios + 3 baños
UN PISO EN LA MITAD DE UN JARDÍN
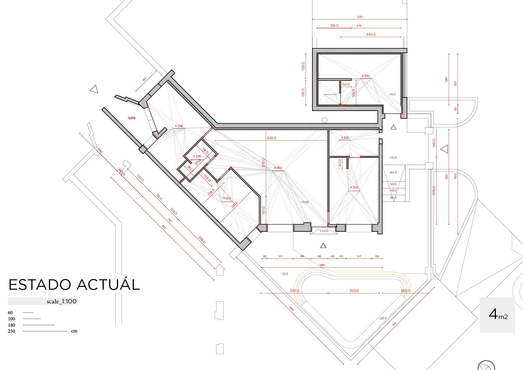
@lcampo 2 es nuestra segunda reforma en la urbanización de los amantes de la naturaleza. Esta vez nos encontramos en una colonia muy especial donde pisos y jardines se interlazan en una diseño ochentero con muchos ángulos.
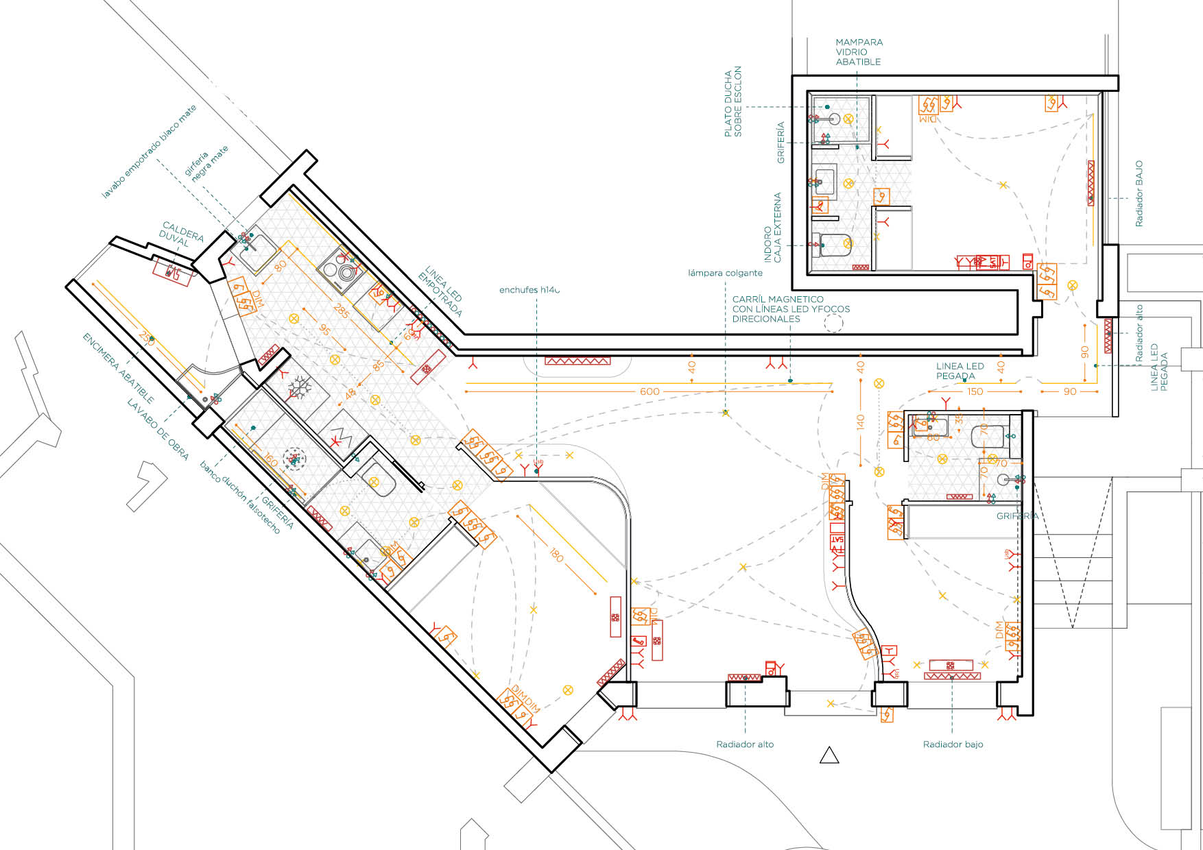
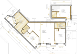
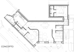
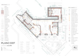
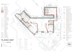
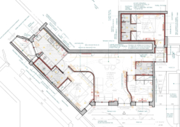
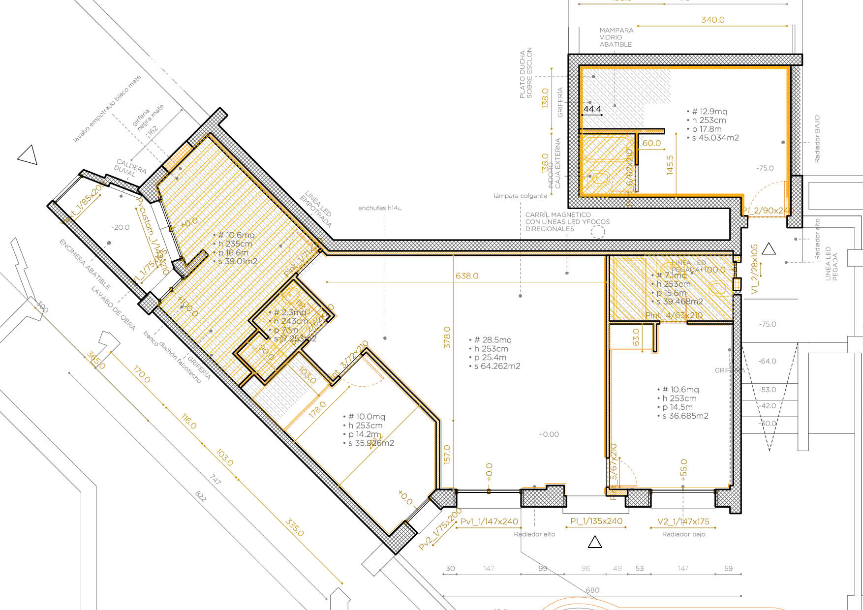
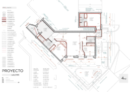
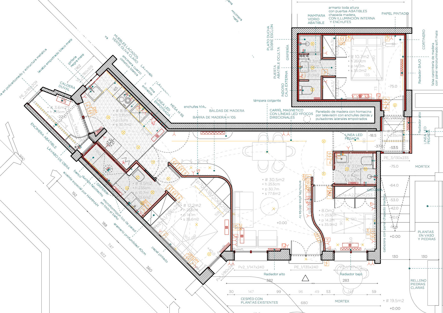
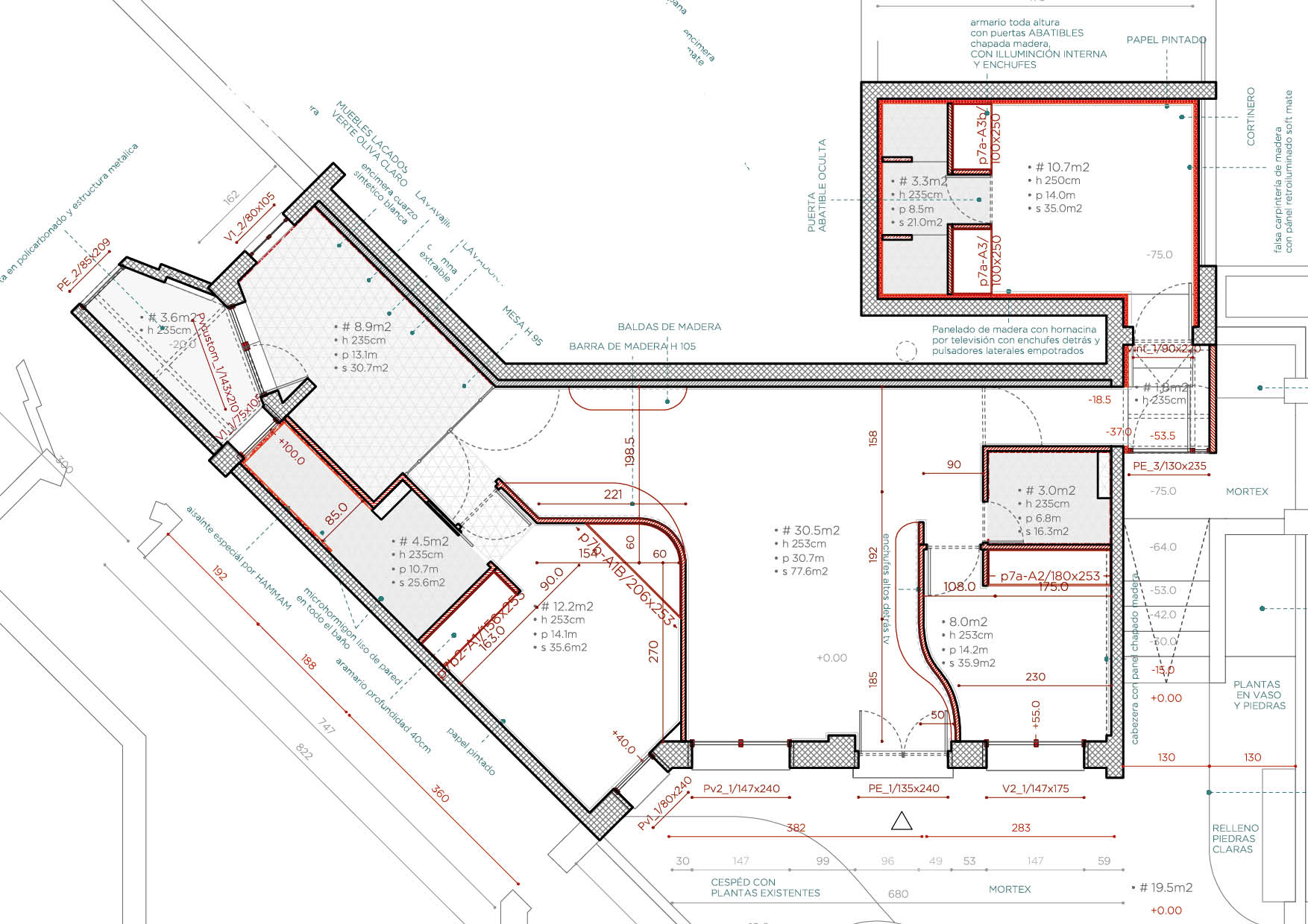
Es el momento de suavizar el módulo y armonizar la distribución del espacio. Las curvas del salón conectan las entradas, pasando por la cocina. No hay pasillos, solo un único volumen distribuidor.
CategoryPisoYear2025LocationMadrid
¿Quieres reformar un Piso?
Lo primero que necesitas es un buen modelo 3D.
INICIA TU PROYECTO >
paso_1 – RELLENA el formulario
y recuerda elegir Piso en la pestaña TIPOLOGÍA.
Danos más información.. tu propuesta personalizada estará lista en pocas horas.